Request more information
Please fill out the form and we will contact you as soon as possible.
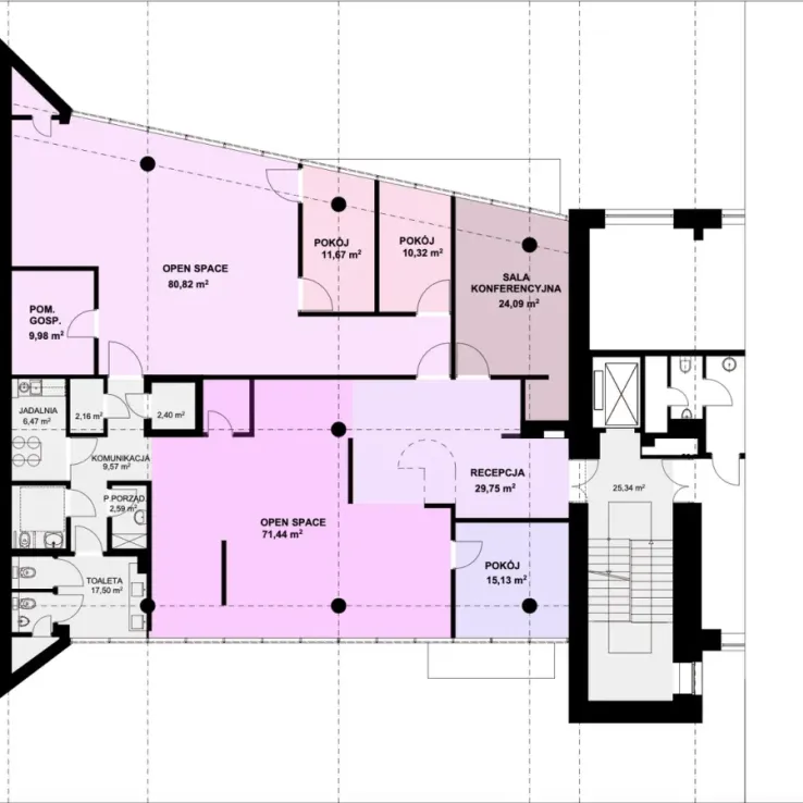
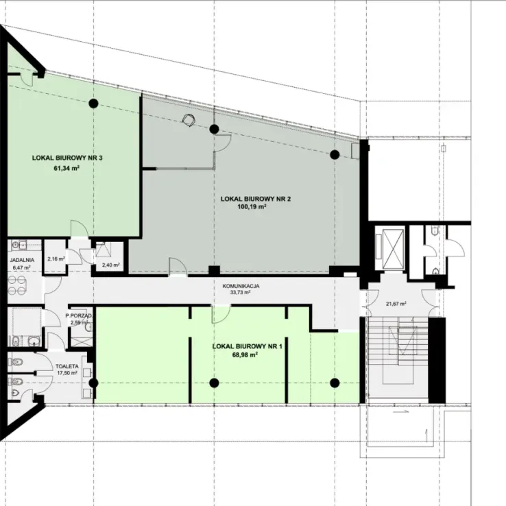
Building details
- StatusExisting
- Building completion date2012
- Total net area1 345 sqm
- Total available office space303 sqm
- Total available retail space0 sqm
- Building classA
- Certificates--
Commercial terms
- Asking rent for office space52.00 - 52.00 PLN/sqm/month
- Minimum lease term36 mth
- Service chargeContact us
- Underground parking rentContact us
- Surface parking rent58.80 EUR/place
- Parking ratio1/100
- Add-on factor6.14%
Office standard Centrum Biznesu Kopcińskiego 77
Bistro/canteen
BMS
Smoke detectors
Two independent power sources
Air conditioning
Access control
Fibre optic connection
Security
Electrical wiring
Computer cabling
Raised floors
Suspended ceilings
Electric car charging points
Reception
Sprinklers
Covering
Additional amenities Centrum Biznesu Kopcińskiego 77
Office location - Centrum Biznesu Kopcińskiego 77
All data is submitted solely for information purposes and does not constitute an offer within the meaning of the Civil Code Act of 23 April 1964 (Journal of Laws of 1964, no. 16, item 93, as amended).
Other offices in the region























